ZONA EST di Lecce, in comparto edilizio residenziale in forte espansione, denominato "La Nuova San Lazzaro" siamo lieti di proporvi rifinito trilocale arredato posto al 4° ed ultimo piano di un elegante contesto condominiale.
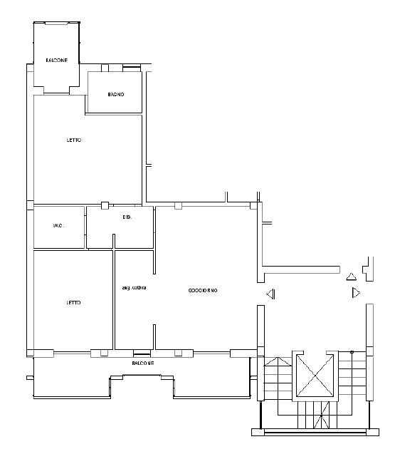
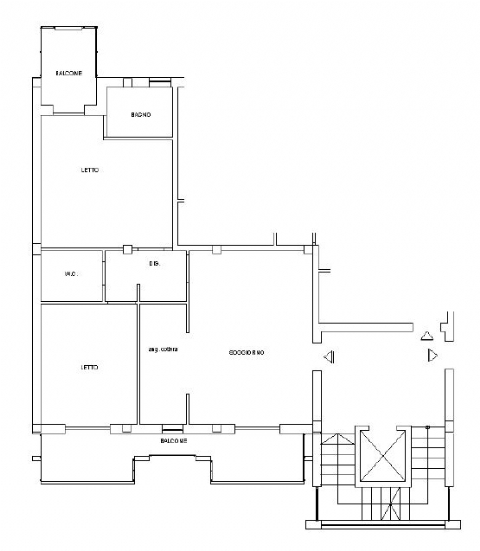
L'appartamento è composto da un ampio soggiorno-living, cucinotto finestrato separato da porta a scomparsa, disimpegno per accedere alla zona notte in cui troviamo un'ampia camera matrimoniale servita da bagno in camera con vasca e balcone di esclusiva pertinenza, dal disimpegno troviamo prima il secondo bagno con doccia (bagno cieco ma servito da areazione forzata) a seguire si accede alla seconda camera da letto con affaccio diretto su ampio balcone comunicante con il balcone di pertinenza della zona giorno.
L'immobile si presenta in ottime condizioni, infissi in doppio vetro camera, porta blidanta, impianto di condizionamento centralizzato come macchina ma autonomo per ogni stanza, impianto di riscaldamento e termoarredo nei bagni, contesto condominiale tranquillo e ben curato.
Completa la soluzione un garage di 16 mq posto al piano S1, situato sulla sinistra appena scesa la rampa, posizione ottimale per una manovra agevole.
Ambita zona est a pochi minuti dal centro di Lecce, zona servita da tutti i beni e servizi di prima necessità, caratterizzata da complessi residenziale di recente e nuova costruzione, con ampi marciapiedi, strade larghe, con particolare attenzione anche al verde.
Ne consigliamo la visione!
| Tipo contratto: | Vendita |
| Tipologia: | Appartamenti |
| Provincia: | LE |
| Comune: | Lecce |
| Quartiere/Via: | Via Caiulo, 20 |
| Zona: | EST |
| Condizioni: | Buone Condizioni |
| Piano: | 4° e ultimo piano |
| Box: | Si 16 mq |
| Riscaldamento: | Autonomo |
| Ascensore: | Si |
| Disponibilità: | Immediata |
| A.P.E. : | N.D. |
Via De Gasperi, Lecce
Via Pasquale Manni 4/B, San cesario di Lecce