In Zona Salesiani proponiamo quadrilocale con scoperto, spa e terrazza, in contesto residenziale tranquillo e ben servito, a pochi minuti dal centro di Lecce.
*Garage (opzionale, 24 m²): €25.000*
L'immobile è stato oggetto di ristrutturazione nel 2017 (impianti idrici ed elettrici, sanitari, infissi, finiture) e si presenta in ottime condizioni.
Sino a Novembre è stato utilizzato come B&B di fascia alta.
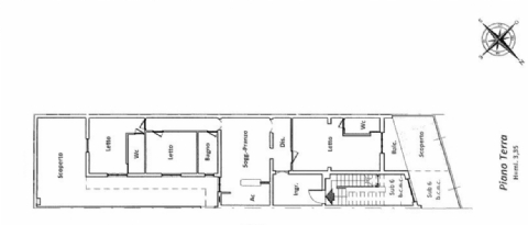
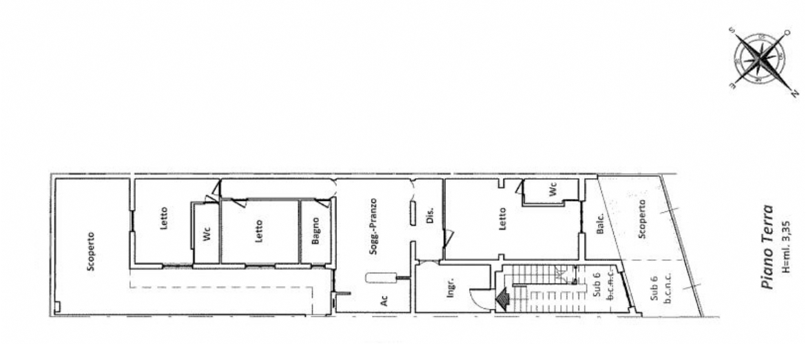
La proprietà è composta da un ingresso/reception, ampio open space con cucina a vista e zona pranzo, con accesso diretto allo scoperto retrostante, 3 camere da letto matrimoniali, tutte con bagno privato: una suite servita da vasca idromassaggio per due persone, una luxury suite con zona benessere privata con piscina, sauna e doccia emozionale, una camera standard con bagno.
Area solare di proprietà, con possibilità di installare impianto fotovoltaico o creare un pergolato/solarium vivibile.
Perfetta come abitazione di pregio, struttura ricettiva o centro estetico con spa
*Garage (opzionale): a circa 100 metri dall’abitazione, è disponibile un comodo box auto di 24 m²– Prezzo: €25.000
Pronta per essere abitata o avviata come attività.
Per Info & Visita Agenzia Immobiliare Lecce Eden Real Estate.
| Tipo contratto: | Vendita |
| Tipologia: | Appartamenti |
| Provincia: | LE |
| Comune: | Lecce |
| Quartiere/Via: | Via De Gasperi |
| Zona: | Salesiani |
| Condizioni: | Ottime |
| Piano: | Terra |
| Area solare: | Di proprietà |
| Riscaldamento: | Autonomo |
| Arredamento: | Completamente Arredato |
| Giardino: | Privato |
| Balconi e terrazze: | Si 130 mq |
| Disponibilità: | Immediata |
| A.P.E. : | N.D. |
Via Pasquale Manni 4/B, San cesario di Lecce