Villetta indipendente ristrutturata ad appena 3,5 km dall'ingresso di Maglie poco prima della Tenuta Luca Giovanni, all'interno di ampio giardino piantumato di 2100 mq interamente recintato;
Localita' Bosco Frasciola
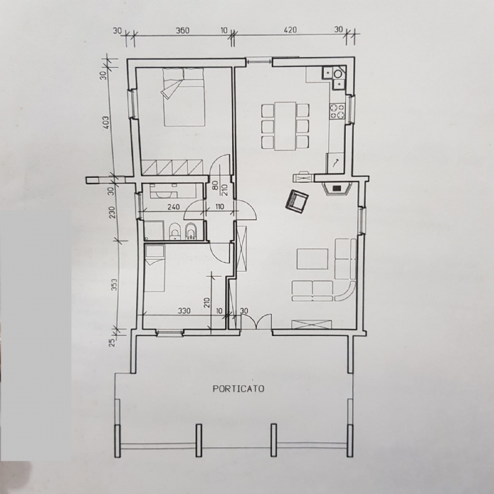
La proprietà è situata centralmente rispetto all'appezzamento di giardino alla quale si accede tramite vialetto, sviluppa circa 80 mq abitativi e 30 mq di veranda antistante.
La villetta è composta da 4 vani: dall'ingresso si accede alla zona living in cui è presente il salotto e un rifinito caminetto, proseguendo tramite open space si accede alla cucina con angolo cottura a vista; centralmente tra la zona living e la cucina si accede ad un pratico disimpegno sul quale si affacciano le due camere da letto e il bagno con doccia, le due camere sono rispettivamente una matrimoniale di circa 15 mq e una cameretta comunque generosa di 12 mq.
Completa la proprietà un giardino piantumato con palme, pini e alberi da frutto.
E' presente riscaldamento e caldaia a pellet, aria condizionata e pozzo artesiano.
Ottima soluzione per chi cerca una soluzione vicina alla città ma allo stesso tempo nella quiete della natura, il contesto è comunque abitato con villette indipendente nel vicinato.
Per Info e Visita Agenzia Eden Real Estate
Via Monte San Michele, 49 Lecce.
| Tipo contratto: | Vendita |
| Tipologia: | Ville |
| Provincia: | LE |
| Comune: | Maglie |
| Quartiere/Via: | SP361 |
| Condizioni: | Ristrutturato |
| Piano: | Terra |
| Box: | Posto Auto Coperto |
| Area solare: | SI |
| Riscaldamento: | Autonomo |
| Giardino: | SI |